
Đang sử dụng máy khoan tường chuẩn bị lắp giá treo ti vi thì nghe thấy tiếng “BỤP” . Nhà anh Thắng bỗng dưng mất điện cả phòng tối om . Định thần một lúc anh mới hiểu ra khẳ năng anh khoan vào đường dây điện làm chập điện khiến aptomat tổng nhảy.
Trên đây là một trong nhiều trường hợp khoan vào đường dây điện âm tường mà trung tâm sửa điện nước Kubet đã xử lý cho khách hàng .
Khoan vào đường dây điện âm tường thường xảy ra khi ku casino - khoan tường treo tranh , ảnh , treo gương ,treo thiết bị vệ sinh, treo mặt lạnh điều hòa . Nguyên nhân chủ yếu do ku casino - hoặc chủ nhà không nắm được sơ đồ đường điện trong nhà hoặc nguyên tắc bố trí đường điện trong nhà , hoặc do ku casino - lắp đặt điện nước non tay không nắm rõ được nguyên tắc thiết kế đường điện nên chạy đường điện âm tường sai vị trí.
Nguyên tắc thiết kế mạng điện trong nhà như sau

Tủ điện tổng tầng đặt nơi ra vào chung dễ thao tác cách sàn 1,4m. Dây cáp nguồn thông tầng được chạy từ tủ điện dưới thẳng lên . Nếu như tủ điện tầng trên thay đổi vị trí thì cáp điện tổng từ tủ tầng dưới chạy thẳng lên trần nhà đi ngang bắt lên trần tới vị trí tủ điện tầng trên thì xuyên trần lên thẳng tủ điện tầng trên.
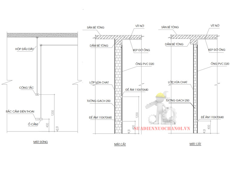
Công tắc đèn đặt ngay cửa ra vào cách sàn 1,2m ,Dây nguồn hệ thống đèn được chạy từ tủ điện lên trên trần chạy ngang tới vị trí bảng công tắc đầu tiên rồi chạy thẳng xuống.
Khi khoan tường nên tránh các vị trí dưới đây:

Khi xảy ra sự cố khoan vào đường dây điện âm tường các bạn phải thực sự bình tĩnh liên hệ với dịch vụ sửa điện chập uy tín tại nhà . Các bước xử lý như sau:

Ku casino - sửa điện tại nhà 24/24 Kubet
|
Nội dung sửa chữa |
Đơn giá sửa chữa / đ |
Ghi chú |
|
Sửa điện chập do khoan vào đường điện âm tường |
350.000 |
Xử lý nối dây tại chỗ không chôn hộp |
|
Sửa điện chập do khoan vào đường điện âm tường |
450.000 - 650.000 |
Xử lý nối dây điện tại chỗ chôn đế chống cháy |
|
Lắp đèn âm trần |
150.000 – 350.000 |
Lắp trên 5 bộ giá 150.000đ/cái. Bao gồm công đi dây trên trần |
|
Lắp mới 1 ổ điện nổi |
100.000đ – 200.000
|
Số lượng 5 bộ trở lên |
|
Thay ổ cắm nổi |
100.000đ – 150.000
|
Số lượng 5 bộ trở lên |
|
Thay aptomat |
80.000 – 150.000
|
Thay dưới 2 bộ giá 150.000đ/bộ |
|
Nội dung sửa chữa |
Đơn giá sửa chữa / đ |
Ghi chú |
|
Sửa điện,thay đèn âm trần |
70.000 – 150.000 |
Thay dưới 2 bộ giá 150.000đ/bộ. |
|
Lắp thêm ổ cắm âm tường |
250.000/m |
Bao gồm công đục, đi dây ,chát tường , lắp mạt ổ hoàn thiện |
|
Sửa điện thay công tắc |
80.000 – 150.000 |
Thay dưới 2 cái giá 150.000đ/bộ |
|
Công lắp công tơ điện |
200.000 – 450.000 |
Gía phụ thuộc vào việc đi dây nguồn, tách điện |
|
Thay quạt thông gió trên tường |
250.000đ – 300.000 |
Không chạy lại dây điện |
|
Lắp quạt thông gió trên tường |
350.000- 450.000 |
Đi lại dây nguồn, gắn quạt, không đục cắt tường
|
|
Lắp quạt thông âm trần thạch cao |
300.000 – 400.000 |
Có sẵn đầu điện chờ |
|
279 Trần Khát Chân - Hai Bà Trưng - Hà Nội . Hotline : |
|
771 Nguyễn Xiển - Thanh Xuân - Hà Nội. Hotline : |
|
257 Trường Chinh - Đống Đa - Hà Nội . Hotline : |
|
55 Đinh Công Hạ - Hoàng Mai - Hà Nội. Hotline : |
|
135 Quang Trung - Hà Đông - Hà Nội . Hotline : |
|
16 Phú La - Hà Đông - Hà Nội . Hotline : |
|
6/70 Nhân Huệ - ĐM - Hà Đông - Hà Nội . Hotline : |